
First, let's start with:
How do you mesure the required height of your deck stairs?
It seems simple; you take a measuring tape and you measure the height against the wall.
I's great when life is that simple!
Unfortunately, nothing is level or square in life...
Dont worry for small stairs of 2 or 3 steps.
But deck stairs of 7 steps come 175cm forward from the wall.
And then you might have multiple centimeters difference!
Which in itself is not much of a problem as you wont even notice that when you are climbing your stairs.
But, let's assume you are a perfectionist, please bear following tips into account:
- Try to messure your floor to see if it's really level.
- Use a straight plank or ruler and a level.
(for perfectionist, use a laser level please!) - In the example, I've used a standard level and I'm measuring with a standard tape, with 1 hand only.
So you can be sure the height is not perfect, but again, you won't even notice the difference once you climb the stairs!




In case the height of our standard deck stairs doesn't match the height you need, you can adapt the height with a little bit of DYI.
The complexity depends on how big the difference in height is.
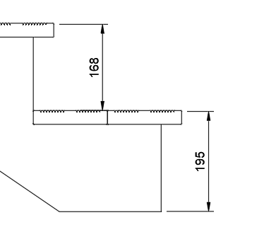
Our standard stairs rise of 17 centimeters per step. (168mm)
MADRID is the only exception with a rise of 13 cm per step.
The lowest step is always 3cm higher then the other steps, as the step boards (3 cm thick) are screwed upon the stringers. (total rise 195 milimeters)
Attention, due to the humidity level of the wood, this will always differ a couple of millimeters!
Which is no problem, you won't even notice ;-)


First, let's start with the floor under your stairs.
Do you install your deck stairs on sand or soil?
Then you can simply dig a bit of soil out... However ! :
Once your stairs are placed on soil/sand, the soil will compact due to the weight of the stairs over the years; your deck stairs will sink slowly into the ground.
If this is the case, please take following suggestions into account:
- place a hardwood decking board under your stairs and hammer it into the ground.
- Place your stairs on this decking board.
(Please use hardwood as this board is all year round in contact with moist soil, hardwood will last way longer dans pressure treated pine.)
How to adapt the height of your deck stairs?
- Height difference between 0 and 3cm: It's a quick fix but; just fix your stairs; Especially for the higher stairs, you won't even notice the difference when the steps are not completely levelled.
- Height difference between 0 and 7cm: We recommend you to cut some centimeters of the bottom of the stair stringers and the posts if you have them. (before mounting your stairs).
- The lowest step has a standard rise of 20cm.
So if you cut lets say, 6cm of, you still have a rise of 13cm compared with 17cm for the other steps. - Height difference between 7 and 17cm: this becomes a little bit more complex:
- The easiest way is still cutting the bottom of the stairs.
The height difference with the other steps will become bigger, but it is still not really bothering to my opinion.
- Another solution is to fix your stairs a couple of centimeters below the highest point.
That will create a final step lower then the rest. (not the most comfortable solution from my point of view.
As you have been climbing your stairs, your legs have captured the rythm of rising 17cm, the last one being a bit lower feels strange.) - You can also put some 9x9cm posts under your stairs to raise it completely.
(I recommend hardwood posts, they will last a lifetime)
Then you can screw some additional decking of your choice on these posts to adjust the height.


Now that you know more about measuring the height and potential solutions to adjust the height of the deck stairs yourself, please restart the deck stair configurator below tofind the best stairs for you!







